• Markvartovická, Ludgeřovice

Rezidenční dům v Ludgeřovicích

Ludgeřovice vám nabídnou klidnější životní styl ve srovnání s rušnou Ostravou, což jistě oceníte, zejména pokud hledáte místo pro odpočinek a relaxaci. V okolí najdete řadu zelených ploch, lesů a parků, které jsou ideální pro procházky, cykloturistiku nebo jiné outdoorové aktivity. Ludgeřovice mají výbornou dopravní dostupnost do Ostravy.

Mgr. Marek Neumann

prodej a komunikace
Dispozice
3+kk
Užitná plocha
73 m²
Zastavěná plocha
97 m²
Terasa
27,3 ㎡
Pozemek
528 m²

7 490 000 Kč

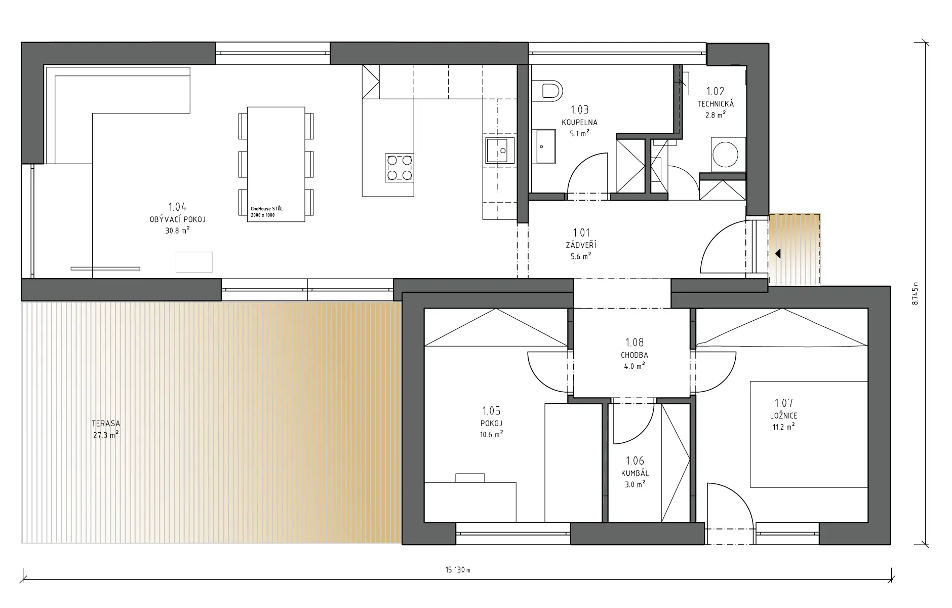
Půdorys

#
Půdorys
Rozloha
01
Obývací pokoj + Kuchyně
30,8 ㎡
02
Zádvěř
5,6 ㎡
03
Koupelna
5,1 ㎡
04
Technická místnost
2,8 ㎡
05
Chodba
4 ㎡
06
Pokoj
10,6 ㎡
07
Kumbál
3 ㎡
08
Ložnice
11,2 ㎡
09
Terasa
27,3 ㎡

Fotogalerie

Zemní vruty od renomované společnosti Bayo’s představují moderní a ekologickou alternativu k tradičním betonovým základům. Instalace je rychlá (během 4 až 10 hodin), vysoce odolná a nezávislá na ročním období. Díky snadné demontáži jsou šetrné k přírodě a umožňují opětovné použití.

Více o výhodách tohoto řešení naleznete ve standardech.

Fasádu domů zdobí elegantní obklad z kanadského modřínu RHOMBUS, který kombinuje moderní design a vysokou odolnost vůči povětrnostním vlivům. Tento přírodní materiál zajišťuje dlouhou životnost a přirozenou ochranu vůči hnilobě, což z něj činí ideální volbu pro estetiku i praktičnost.

PENB.pdf

Střecha našich domů využívá špičkovou EPDM fólii, která je bez spojů, extrémně odolná vůči povětrnostním vlivům a má životnost minimálně 50 let. Finální úpravu tvoří zásyp z říčního kameniva, který chrání střechu a přispívá k dlouhodobé udržitelnosti.

Dešťová voda je zachycována v retenční nádobě a lze ji snadno využít například na zalévání zahrady. Pro pohodlný přístup k vodě jsou na fasádě domu instalovány dva nezámrzné zahradní ventily.

Další technické detaily o střeše a ekologickém využití vody naleznete v dokumentu standardů.

Dřevěná terasa z modřínového dřeva vám rozšíří obytný prostor a poskytne ideální místo pro relaxaci na čerstvém vzduchu. Její design ladí s fasádním obložením i vstupními schody, čímž vytváří harmonii a jednotný vzhled domu. Díky kvalitnímu materiálu je terasa odolná a vydrží desítky let.

Interiér

Moderní domy Nové Ameriky nabízejí efektivní a komfortní systémy vytápění a chlazení, které zajistí ideální klima ve všech ročních obdobích.

Pro podlahové vytápění využíváme pokročilé systémy kompatibilní s vinylovými podlahami, které zajišťují rychlé a rovnoměrné zahřátí místností bez zbytečných energetických ztrát. V koupelnách a technických místnostech nabízíme chytré řešení temperování dlažby, které spojuje vysoký komfort s dlouhou životností.

O příjemné klima během horkých letních dní se postará klimatizační jednotka Samsung WindFree™, která ochlazuje bez průvanu a přizpůsobí se vašim potřebám pomocí chytré aplikace. Tato jednotka může zároveň sloužit i jako doplňkový zdroj vytápění v chladnějším období.

Více technických informací o vytápění a chlazení naleznete v dokumentu standardů.

Domy Nové Ameriky jsou vybaveny moderním systémem řízeného větrání s rekuperací, který zajišťuje stálou výměnu vzduchu při zachování minimálních tepelných ztrát. Tento systém přivádí do interiéru čistý vzduch bez prachu, pylu a alergenů, čímž vytváří zdravé a komfortní prostředí.

Navíc je instalována vysoce účinná rekuperační jednotka BRINK FLAIR 225, která je nejen tichá, ale také velmi úsporná, což zajišťuje maximální komfort a energetickou efektivitu.

Více technických informací o vytápění a chlazení naleznete v dokumentu standardů.

Hliníková okna s izolačními trojskly a antracitovým designem poskytují skvělou tepelnou a zvukovou izolaci. Dominantou domu je prostorný HS portál s nízkým prahem, který zajišťuje pohodlný přístup na terasu. Pro relaxaci slouží i unikátní relaxační okno, ideální pro klidné chvíle s výhledem na okolí.

Vstupní dveře s moderním designem doplňuje skleněná stříška a schody z modřínového dřeva, které ladí s fasádou a terasou. Pro větší pohodlí nabízíme také volitelné sítě proti hmyzu na všechna okna.

Více technických informací o vytápění a chlazení naleznete v dokumentu standardů.

Každý dům je vybaven technologií chytré domácnosti od společnosti Somfy, která umožňuje pohodlné ovládání venkovních žaluzií, a to jak jednotlivě, tak skupinově pomocí přednastavených scénářů. Systém lze rozšířit o další prvky podle vašich potřeb.

Samostatné aplikace vám navíc umožňují vzdáleně řídit vytápění, větrání a ohřev vody, což vám poskytuje maximální pohodlí a flexibilitu.

Více technických informací o vytápění a chlazení naleznete v dokumentu standardů.

Lokalita a občanská
vybavenost

Ludgeřovice se pyšní nejen skvělou dostupností městské infrastruktury, ale především veškerou potřebnou občanskou vybaveností přímo na dosah. V blízkosti najdete základní i mateřskou školu, poštu, knihovnu, obchody s potravinami, autobusovou zastávku a restaurace, což zajistí snadné řešení každodenních potřeb. Lokalita je ideální pro rodiny s dětmi i jednotlivce, kteří hledají klidné a bezpečné bydlení se zázemím moderní obce.

FAQ

Dům reflektuje moderní požadavky na energetickou úspornost. Konkrétní hodnoty naleznete v energetickém štítku PENB.

Kompletní přehled naleznete v dokumentu.

Ano, dům můžete navštívit od ledna 2025.

Dispozice jsou pevně dané. Váš dům tak bude připraven okamžitě k nastěhování bez dalších úprav.

Vytápění a chlazení odpovídá nejmodernějším standardům – podrobnosti naleznete v dokumentu.

  1. Uzavřete s námi smlouvu o budoucí kupní smlouvě nebo přímo kupní smlouvu.
  2. Uhradíte zálohu ve výši 60 %.
  3. Zajistíme dokončení všech formalit a připravíme váš dům k předání.

Ano, dům bude dokončen podle našich standardů a připraven k okamžitému nastěhování.

Ano – mezi střechou a technickou místností je připraven husí krk o průměru 50 mm pro snadné propojení panelů se střídačem. Samozřejmostí je dostatek místa v technické místnosti (technologie) a v hlavním domovním rozvaděči (jištění, měřící moduly).

Na stavební části domu 5 let. Na ostatní komponenty (např. vybavení a technologie) dle podmínek jednotlivých dodavatelů.

  • Klidné a rodinné prostředí: Ludgeřovice jsou ideální volbou pro ty, kteří hledají pohodu a únik od městského shonu.
  • Blízkost přírody: Procházky po Farské cestě vás zavedou až k chatě Ostříž, zatímco Ludgeřovické rybníky ve Vrablovci nabízí prostor pro relaxaci a rodinné aktivity. Další možností je blízký Černý les a naučné stezky na Landeku.
  • Občanská vybavenost: V obci najdete vše potřebné – školku, školu, obchody, lékaře, dětské hřiště, restaurace i knihovnu, to vše v pohodlné vzdálenosti od domu.
  • Strategická poloha: Snadná dostupnost centra Ostravy i okolních obcí dělá z Ludgeřovic oblíbené místo pro život.

Dům je postaven v lokalitě mimo záplavovou oblast. Ani při povodních v roce 1997 a dalších extrémních situacích nebyla tato část Ludgeřovic v ohrožení.

Soubory k stažení

Spojte se s námi

Mgr. Marek Neumann

prodej a komunikace

Odesláním formuláře souhlasíte se zásadami ochrany osobních údajů.